Обяви За нас Контакти
Продава 3-СТАЕН
град София, Левски Г
бул. Владимир Вазов
188 700 €
369 065.12 лв.

(1 850 €, 3 618.29 лв./m2)
Цената е с включено ДДС
История на цената
Коригирана в 12:12 на 5 януари, 2026 год.
Обявата е посетена 1685 пъти.
Площ:
102 m2
Етаж:
3-ти от 9
ТEЦ:
ДА
Строителство:
Тухла, Ще бъде въведен в експлоатация 2028 г.

Описание на имота:


С РАЗРЕШЕНИЕ ЗА СТРОЕЖ!
БЕЗ КОМИСИОНА ОТ КУПУВАЧА! ДИРЕКТНО ОТ ИНВЕСТИТОР!

ДИАНА ХОУМС предлага 3-стаен апартамент в новострояща се жилищна сграда в ж.к. Левски Г. На 6 минути пешеходно разстояние от бъдещата метростанция!

Сградата е на етап разрешение за строеж, с планиран срок за изграждане - 36 месеца. Състои се от два жилищни входа с по осем етажа с типови едностайни, двустайни и тристайни апартаменти на всеки етаж.

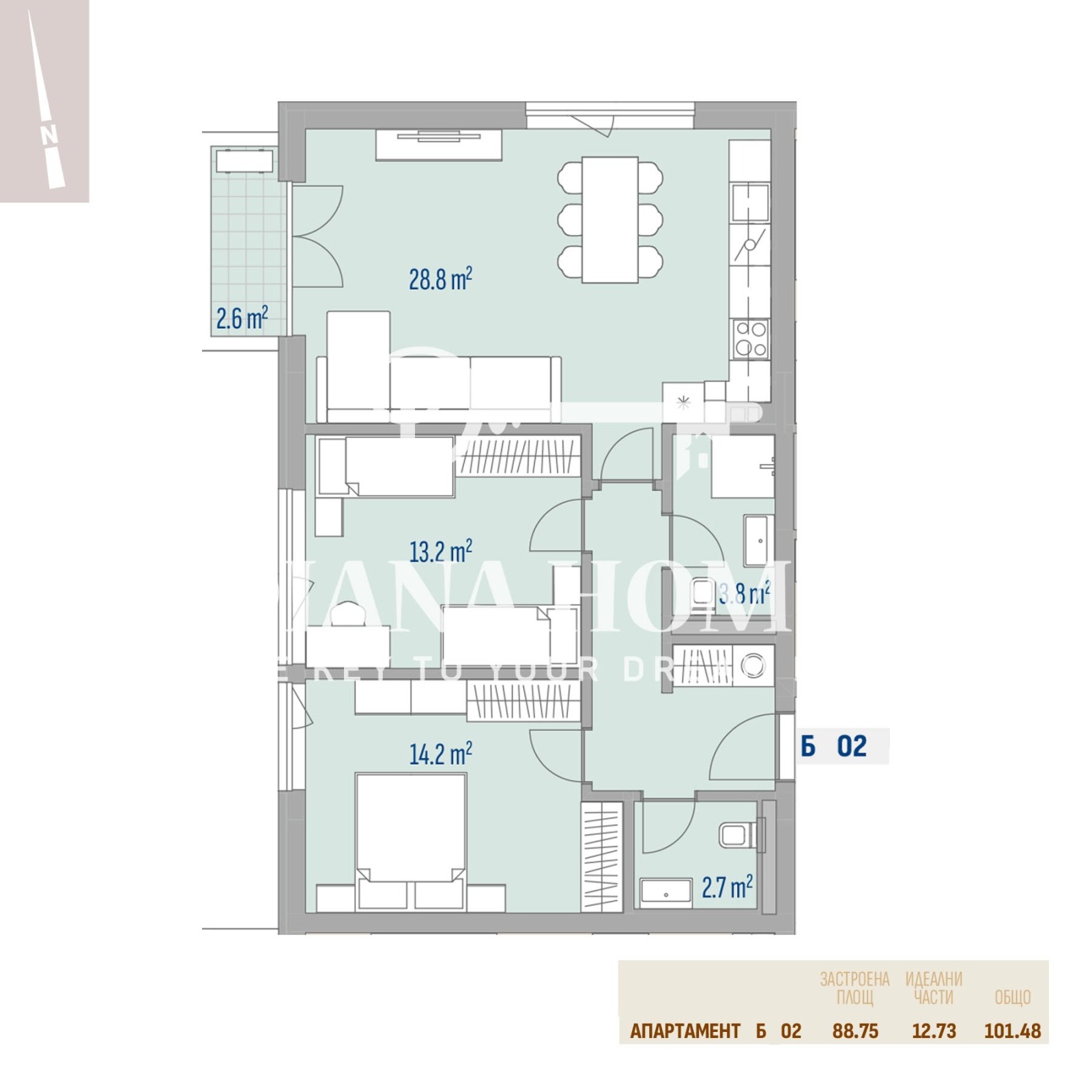
Предлаганият апартамент е на 2-ти жилищен етаж (3-ти надземен), със застроена площ 88,75 кв.м и обща площ 101,48 кв.м. Състои се от дневна с кухненски бокс - 28,80 кв.м, две спални - 14,20 и 13,20 кв.м, два санитарни възела и тераса. Изложение - запад и север. Отопление - на ТЕЦ.

Всички апартаменти в сградата са отлично проектирани, с правилни форми и функционално разпределение, за да се осигури максимален комфорт на обитаване.
Сградата е с изключително атрактивно местоположение - само на 6 минути пешеходно разстояние от новоизграждащата се метростанция и в същото време на отстояние от главния булевард Владимир Вазов. Обликът на района се променя интензивно. Кварталът се разраства като покрай старите панелни сгради, се изграждат нови, по-модерни, като в същото време са запазени голяма част от зелените площи и междублоковите пространства. С пускането на метрото ще се осигури бърз и лесен достъп до центъра и останалите части на града.

Степен на завършеност: на шпакловка и замазка

За клиенти, които ще разчитат на банково финансиране, можем да съдействаме за безплатна консултация с независим кредитен посредник. Най-добрият начин за достъп до всички водещи банки в страната и договаряне на най-изгодните условия за кредитиране.

Агенцията предлага избор от едностайни, двустайни и тристайни апартаменти в сградата, както и паркоместа, подземни и надземни гаражи.

За повече информация се свържете с нас на телефон: 0893 95 10 10
Особености
Тухла
Асансьор
За контакт:
0893951010
Агенция:
ДИАНА ХОУМС ЕООД
0893 95 10 10
Медал за прослужено време
В imot.bg от 2021 г.
dianahomes.imot.bg
Адрес:
област София, гр. София, Лозенец, ул.Златен рог 22
http://www.dianahomes.bg
ИЗПРАТИ ЗАПИТВАНЕ
ИЗПРАТИ ЗАПИТВАНЕТО

Продава 3-СТАЕН
град София, Левски Г
бул. Владимир Вазов
Обява: 1c175467054319855

188 700 €
369 065.12 лв.
История на цената
(1 850 €, 3 618.29 лв./m2)

Цената е с включено ДДС
ЗАПАЗИ ОБЯВАТА

Местоположение: град София, Левски Г, бул. Владимир Вазов

Допълнителни данни за имотите в района и сравнение с други райони

Покажи

Период

и 1 месец

* Средните цени са определени чрез медианна стойност